升降货梯是一种非标定制产品,没有统一的价格规定,那么我们在订购时需要向厂家提供哪些参数呢?定制前我们应该了解一些什么了?下面由升福机械的小编给你一些建议,希望对你有帮助!

1.我们需要了解产品的大概载重重量,定制升降货梯时厂家会问你一个额定载重,我们可以根据自己的产品载重进行选择,列如:1000KG/2000KG/3000KG
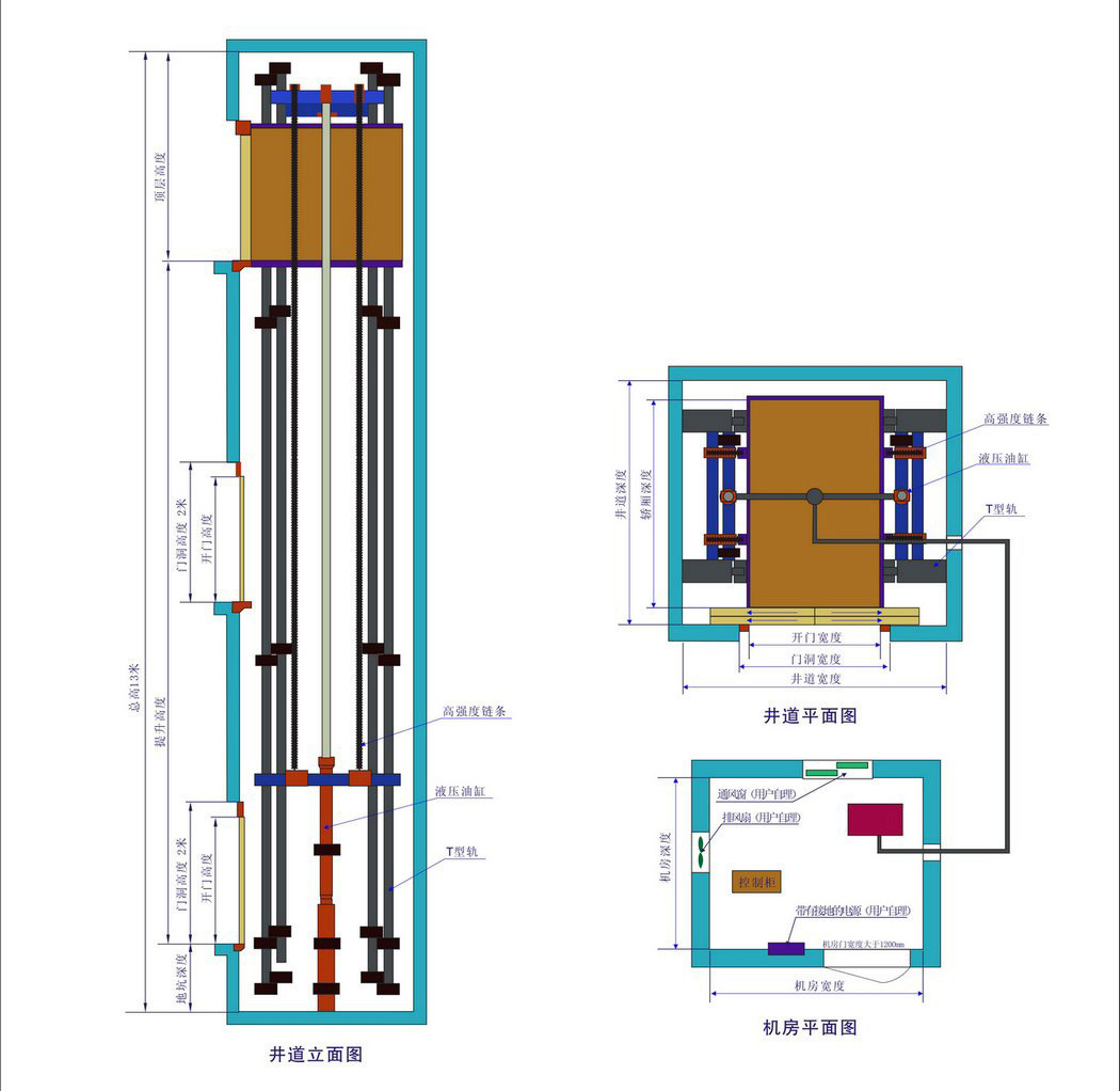
2.工作台面的尺寸,这里我们需要注意一点的是升降货梯平台的尺寸宁可大一点,方便货物的上下运输,也不能选择较小尺寸导致无法使用
3.升降货梯的升高高度,就是指1楼地面到需要安装楼层的地面高度
4.升降平台的使用频率
5.安装地点:室内、室外(升降货梯对安装环境没有太大的要求)
6.货物进出的方向,开门的位置直接影响了导轨的方向
以上就是我们在订购升降货梯需要向厂家提供的参数,希望能对你有所帮助,感谢你的阅读,如需了解更多可咨询升福机械。