当大家购买导轨式升降机的时候厂家经常会问你货物载重多大,楼层升高几米,台面尺寸要多大等等一些问题?很多客户往往对升降平台的整体结构不是很了解,下面由升福机械带大家了解一下安装一台导轨式升降机所用到的配件都有哪些!
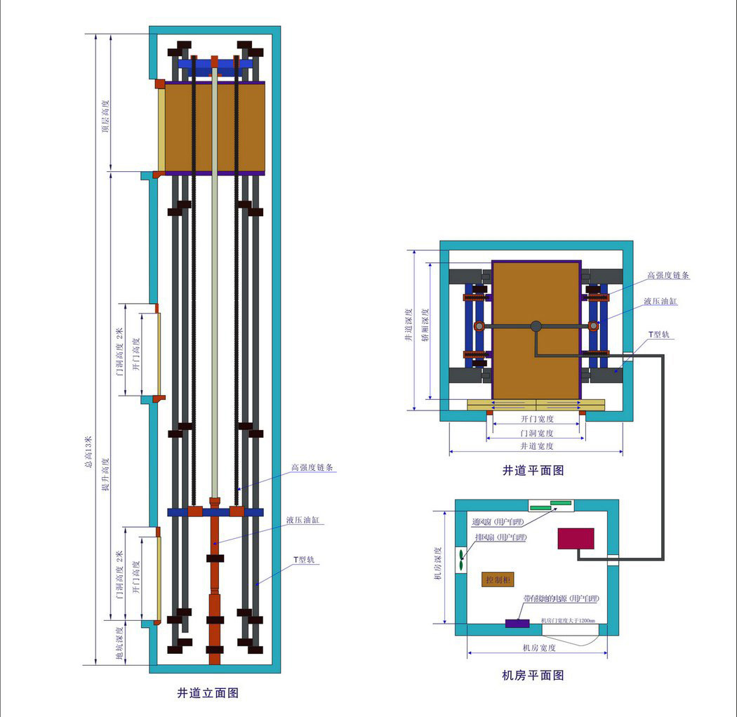
1.整体结构
导轨式升降机主要结构有货架、链条、泵站、油缸、导向机构等组成,升降平台采用油缸与链条相组合的方式完成升降动作,4条固定导轨转运链条:安全系数高,升降平台使用寿命长。
2.液压系统
液压站为专用组合泵站,精磨液压油缸,运行可靠,持久耐用,它将平台所用的单向阀、电磁阀集成为一体,在保证性能的前提下,使结构更加紧凑,有效地减少了泄漏。另外,升降平台配备的应急手动阀在电源发生故障或者停电的时候可使升降平台下降到最近的楼层位置。
3.电气系统的主要优点如下:
在控制方面,升降平台设有互动连锁功能,可以有效避免人为操作错误;紧急停止按钮的增加使操作员能够应对意外情况。油箱设有油温保护,当油箱中的油温超过设定值时,油温保护装置发出信号暂停升降平台的使用,当油温下降后才可重新启动。
4.导轨式升降机设备参数
1.升降高度: mm
2.额定载重: KG
3.额定电压: 380V;50Hz
4.台面护栏: mm
5.提升速度: 6m/min

5.主要配件清单
(1)安装环境:室内、室外均可安装,对场地没有太大的要求
(2)台面铺板:4mm花纹板;防滑
(3)导轨:工字钢(按照用户需求安装单轨、双轨、四轨)
(4)油缸:耐磨油缸
(5)液压油:46#抗磨液压油
(6)轿厢结构:整体焊接拼装
(7)泵站:专用组合泵,含各种阀
(8)钢丝绳:10#钢丝绳
(9)控制方式:各楼层均可控制
(10)控制系统:带急停按钮以防紧急情况
(11)电器:按钮,开关等
(12)行程开关
(13)电机电缆、控制线缆:长度配做
(14)配电箱:1个
以上就是安装一台导轨式升降机大概需要的配件,升福厂家是一家产业生产升降货梯、升降平台的厂家,如需了解更多,可立即资讯我们!!!